top of page

Portfolio

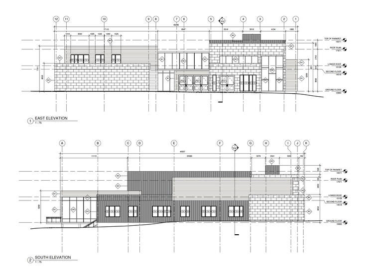
Crossroads Church

Architectural Drafting and Detailing IV, Semester 4

In this project, the brief was to create a Church using International Style Architecture as inspiration. The project site was located in Pickering, Ontario. 

bottom of page